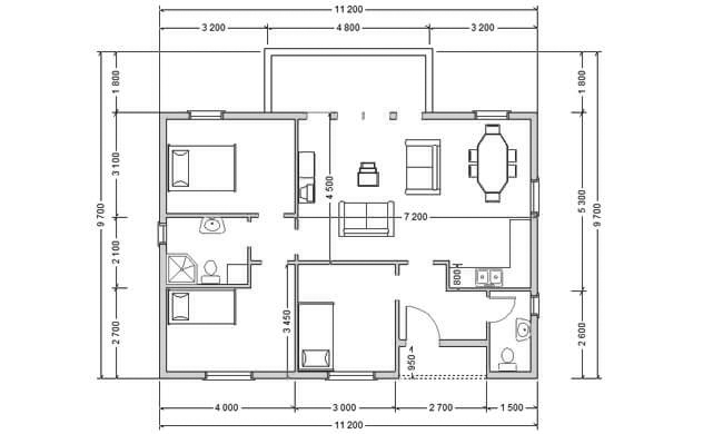
Moderna montažna kuća KS-102 bruto površine 102,4 m2, kao spoj tradicionalne i moderne kuće prilagođena je savremenom načinu života. Predviđena je kao četvorosoban stan sa većim dnevnim boravkom i većom centalnom terasom. Balkonska vrata i veliki svetlosni otvori ostvaruju ugodan i svetao ambijent dnevnih prostorija. Spavaći deo sačinjavaju tri spavaće sobe sa zasebnim kupatilom. Viševodni krov jednostavnog oblika daje ovoj kući poseban šarm i eleganciju.




