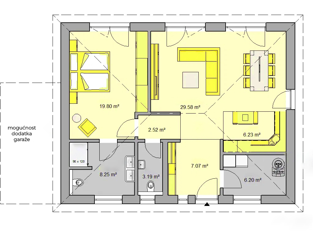
Model KS-104– dom koji vešto kombinuje sve praktične i udobne aspekte na 83 m² neto površine, odnosno 104,16 m² bruto površine, kako bi vam pružio život pun radosti i udobnosti. Čim uđete u kuću kroz hodnik, primetićete da se životni prostor koristi efikasno i optimalno. Hodnik nudi prostor za garderobu ili ugradni plakar. Odavde možete pristupiti i pomoćnoj prostoriji, koja se pokazuje kao prava prednost u svakodnevnom životu. Ovde ćete naći prostor za svoju mašinu za veš, mašinu za sušenje i još mnogo toga, tako da ćete od sada biti dobro pozicionirani kada je u pitanju organizacija domaćinstva. Put se nastavlja u otvoreni dnevni boravak i trpezariju, koji čini srce čvrste kuće. Ovde se kuvanje, jelo i opuštanje stapaju u harmoničan suživot. Soba nudi dovoljno prostora za ostrvo za kuvanje, koje pripremanje obroka ne samo da čini zadovoljstvom, već služi i kao udobno mesto za sastanke vaših najmilijih.




