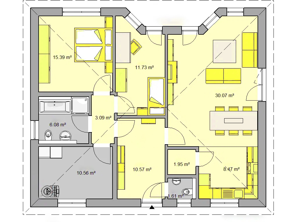
Sa 3 sobe na 100 m² neto površine, odnosno 129,42 m² bruto površine, Model KS-130 nudi optimalan raspored prostorija za dobrobit malih porodica ili starijih koji žele da žive bez prepreka do starosti. Dobro osmišljen i pametno isplaniran, ovaj plan postaje pravo prostorno čudo, gde svaki stanar ima dovoljno prostora za slobodu. Model NV-130 ne ostavlja ništa da se poželi i savršen je dom za mlade i stare!




