Stambena kuća KS-40 bruto površine 45,07 m2(neto površine 39,26 m2) je predviđena kao vikend varijanta, projektovana kao dvosoban stan. Dnevni boravak sa trpezarijom i kuhinjom je povezan i izlazi na terasu. Ostali prostor zauzima jedna spavaća soba i kupatilo. Krov na četiri vode i jednostavan izgled fasade pogodni su za prilagođavanje svim okruženjima.
MONTAŽNA KUĆA MODEL KS-40
IZGLED OBJEKTA
SLIKE OBJEKTA
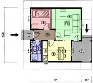
RASPORED PROSTORIJA
| 1. Ulaz | 1,75 m2 |
|---|---|
| 2. Predsoblje | 3,12 m2 |
| 3. Kupatilo | 2,76 m2 |
| 4. Kuhinja | 8,08 m2 |
| 5. Dnevna soba | 11,95 m2 |
| 6. Spavaća soba | 5,52 m2 |
| 7. Terasa | 7,35 m2 |
| Ukupna neto kvadratura | 38,87 m2 |
|---|




